Kinnerton St
 
      
      
         
      
      
         
      
      
         
      
      
         
      
      
         
      
      
         
      
      
         
      
      
         
      
      
         
      
      
         
      
      
         
      
      
         
      
      
         
      
      
         
      
      
         
      
      
         
      
      
         
      
      
         
      
      
         
      
      
         
      
      
         
      
      
         
      
      
         
      
    Tucked away on a quiet hidden street behind Knightsbridge road and comprising part of historic Georgian mews building within the Belgravia Conservation Area, the project at Kinnerton St sees the refurbishment and extension of the property over three storeys.
Initiated originally with Turner Works, the project was developed, designed and guided through planning, securing consents from both the local authority and Grosvenor estates, commencing on site before being taken to completion by Well Street Studio, a newly established practice founded by the project architect, thus maintaining continuity, good client/architect relationship and practice collaboration.
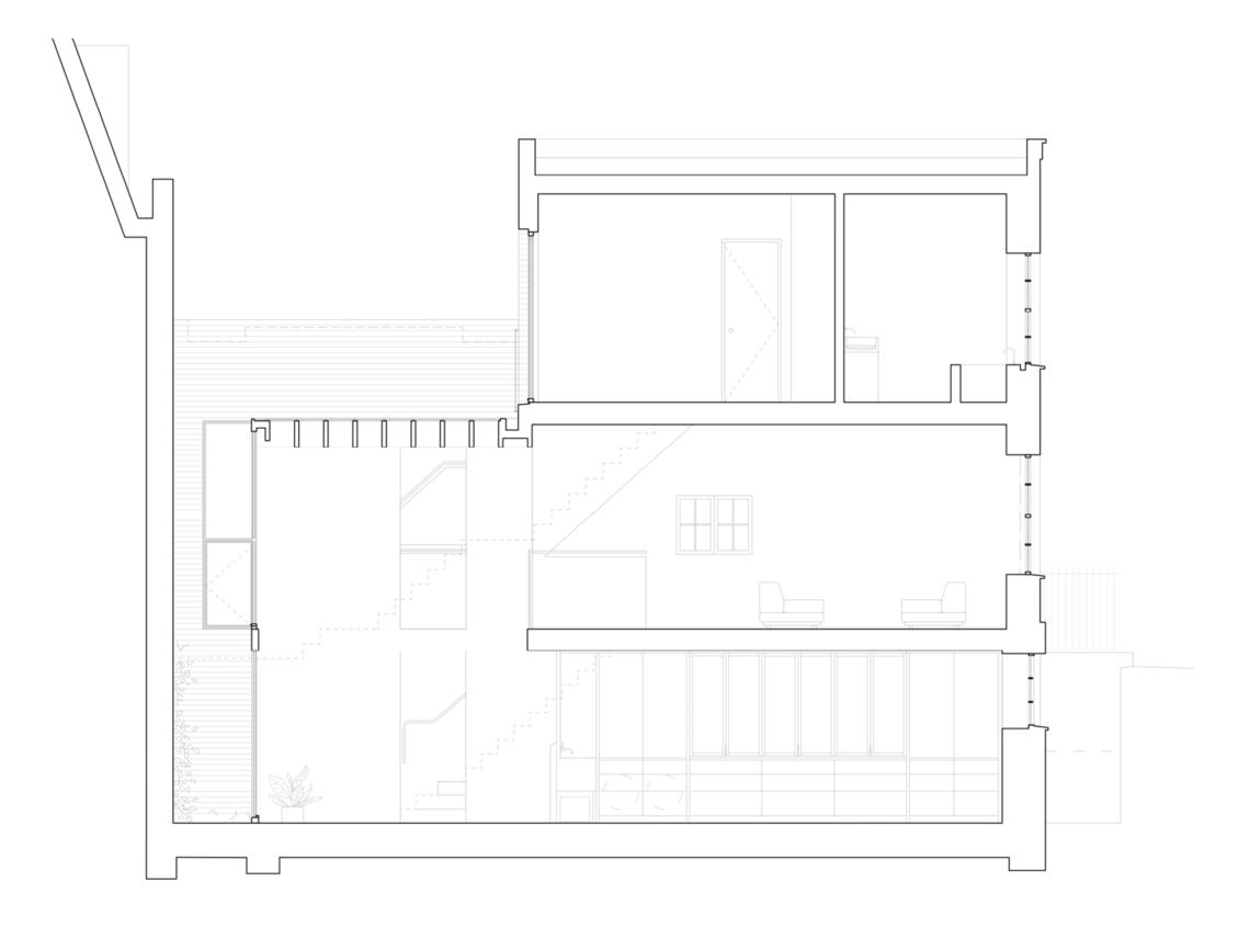
Formerly, the principal stairs within the property cut deep into the plan of the house creating compromised upper floor spaces and uncomfortable routes between rooms. Additionally, ceiling height in the lower ground floor, limited to 2.1m adjoined split-level with an unsympathetic and dated uPVC conservatory extension, negotiated between spaces by a haphazard stair configuration serving both as route between the upper and lower ground floor, impacting negatively on the coherence of the home.
In order to restore a sense of continuity and legibility to the house two fundamental changes were proposed: moving the main stairs into the existing rear extension, and removing and replacing the conservatory, lowering the ground level beneath to create a new double-height volume thereby connecting to and expanding the existing lower ground floor.
In addition, by opening the entire rear and south facing façade of the property it was possible to bring light deep into the building plan, enabling the creation of a generous and bright living room space overlooking the double height volume.
Investigative demolition revealed substantial parts of the building to be in poor condition requiring extensive replacement, while lower ground floor excavations unearthed multiple obstructions and a disused coal tunnel extending under adjacent properties. Careful attention was required to sensitively piece back together the parts of the house and to negotiate works in and around adjacent foundation structures.
Site-cast architectural finish concrete joists were inserted over the new double height space, forming both loadbearing support to a new glazed flat roof and a sculptural element serving to modulate daylight within the space; rebounding ambient light and casting articulated shading across the walls and floor.
The upper rear façade was reinstated in reclaimed and reused site brick following the removal of a bulky blocked off chimney structure. Here a new folding steel-frame double doorset and bespoke cast iron Juliette balcony create a view out across the new glazed roof and concrete fins, providing glimpses through and into the double height space and dining room below.
Permitted by the removal of the old back access and stairs, the deepened entrance space also allowed for a full reconfiguration of the circulation between each of the floors. A single direction flight runs up to the bedrooms and master bathroom here and a landing mid-way gives a view out from a retained window opening to the mews below. A second flight runs directly underneath the first, winding around at lower ground floor level and accommodating an intermediary space; giving access to a shower room and understairs storage space before opening into the double height dining room.
The elevation of the new rear extension is set back from the adjoining property accommodating an external space. The elevation is fully glazed in slender profiled and thermally-broken steel in a pale grey-white textured finish. The lower section of the glazing is formed by a folding door arrangement, allowing the space to be opened up to the outside.
Together with the client, a light and sparse material palette was selected which compliments the more defined volumes of the interior. Over the lower ground floor and dining room a bespoke pale grey and white marble honed terrazzo finish has been poured, continuing out to the small external courtyard space. Large stone pieces, consisting of three different types of marble were each carefully selected, shaped and arranged, giving a highly customised and defined character to the finish.
Broad grained solid ash floorboards are used throughout the upper floors and stairs, finished in a soft white oil and soap lye wash. Pale grey and subtly toned stained ash joinery compliments the floors in each of the bedrooms, dressing room and living room upstairs.
Italian Ceppo di Gré was utilised as finish for the bathroom as a monolithic material incorporating the bath, washbasins and shower, below dado level. The stone was sourced directly from the quarry in Bergamo to ensure matching panels and consistency in quality.
The clients selected a number of feature lights for the project; integrated moonline slot-lights wash the hallway walls in subtle indirect lighting, Bocci hand drawn glass pendants are suspended within the double height space between the concrete fins creating a juxtaposition of light and heavy materiality. A linear diffuser light links between the butterfly profiled bedroom and flat ceiling of the dressing room.
Robert Guest, Principal Architect, Well St Studio.
All Photos by Lorenzo Zandri and R Guest